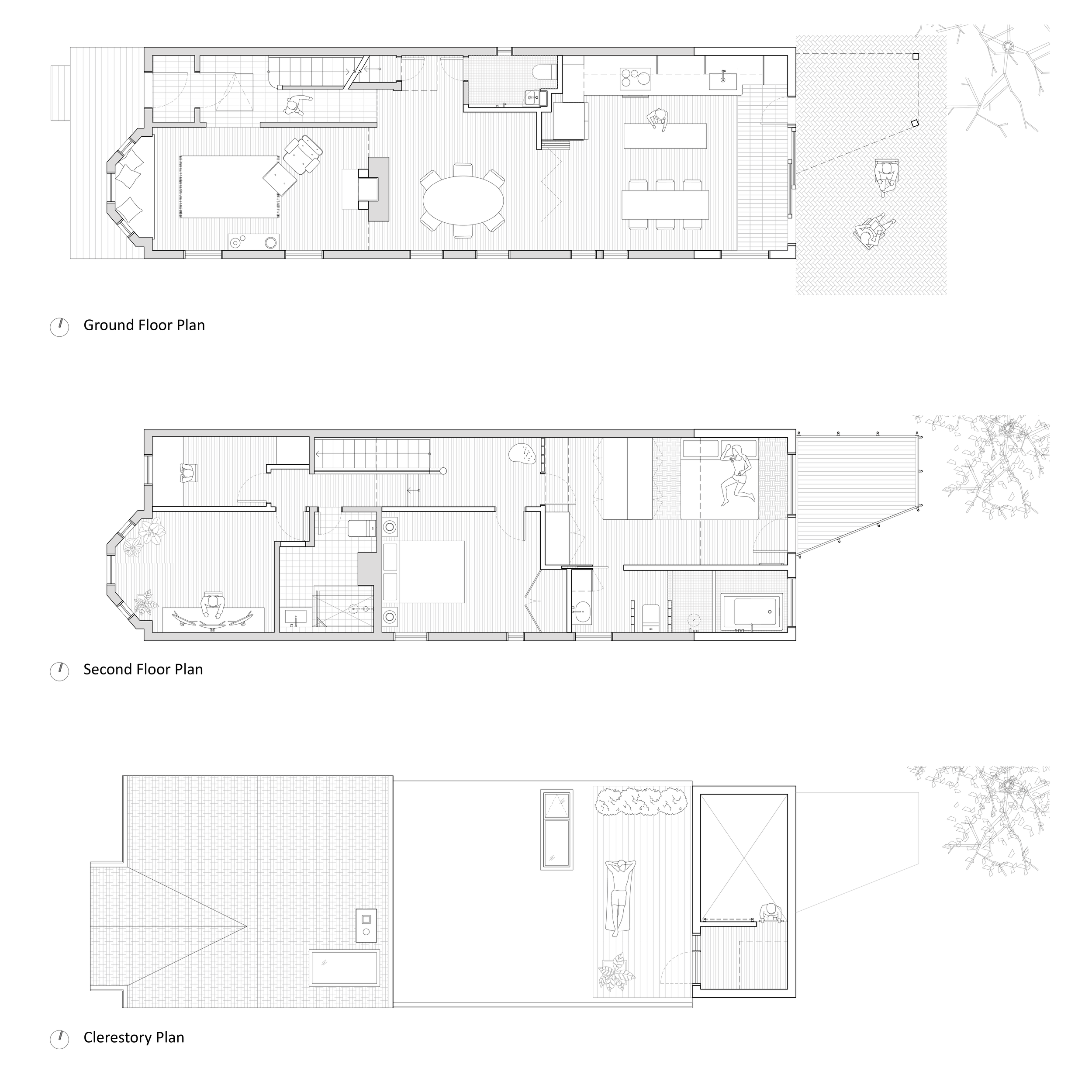
Glimmer House
Glimmer House explores how a home can adapt to different definitions of family, designed for a couple, their large dog, and frequent long-term guests. The vibrant addition playfully reinterprets local Victorian masonry and provides an abundance of glimmering light through large apertures and its angular form. The home’s dark, glossy kitchen reflects outdoor vistas, and a tranquil, grotto-like bathroom opens to the tree canopy; interventions which balance the home’s opportunities for social connection, solitude, and communion with nature.
Project Information
Toronto, Canada | 170 sm | 1800 sf
Photography: Scott Norsworthy
Construction Partner: Desar Construction with BL Woodworking
Press & Awards
Dwell Magazine, A Townhouse with a Punchy Profile
Toronto Star, Owner of Glimmer House goes bold at home
Architect’s Newspaper, A lighthearted spin on Toronto’s history
AN Interior, Reserve and Refresh
The Globe and Mail, Outdoor showers: Refreshing or weird?
Designlines, A Beacon of Modern Design in Parkdale
Home Adore, Merging Victorian and Nautical Aesthetics in Toronto
Glimmer House
Glimmer House explores how a home can adapt to different definitions of family, designed for a couple, their large dog, and frequent long-term guests. The vibrant addition playfully reinterprets local Victorian masonry and provides an abundance of glimmering light through large apertures and its angular form. The home’s dark, glossy kitchen reflects outdoor vistas, and a tranquil, grotto-like bathroom opens to the tree canopy; interventions which balance the home’s opportunities for social connection, solitude, and communion with nature.
Project Information
Toronto, Canada | 170 sm | 1800 sf
Photography: Scott Norsworthy
Construction Partner: Desar Construction Studio with BL Woodworking & Design
Project Information
Toronto, Canada | 170 sm | 1800 sf
Photography: Scott Norsworthy
Construction Partner: Desar Construction Studio with BL Woodworking & Design
Select Press & Awards
Dwell Magazine, In Toronto, a Townhouse Maintains a Punchy Profile While Fitting in With Its Neighbors
Toronto Star, What colour works best with brick, trees, and snow? Owner of Glimmer House goes bold at home
Architect’s Newspaper, Kilogram Studio’s Glimmer House puts a lighthearted spin on Toronto’s history
AN Interior, Reserve and Refresh
The Globe and Mail, Outdoor showers: Are they refreshing or weird?
Home Adore, Glimmer House: Merging Victorian and Nautical Aesthetics in Toronto
Project Information
Toronto, Canada | 170 sm | 1800 sf
Photography: Scott Norsworthy
Construction Partner: Desar Construction Studio with BL Woodworking & Design
Glimmer House
Glimmer House explores how a home can adapt to different definitions of family, designed for a couple, their large dog, and frequent long-term guests. The vibrant addition playfully reinterprets local Victorian masonry and provides an abundance of glimmering light through large apertures and its angular form. The home’s dark, glossy kitchen reflects outdoor vistas, and a tranquil, grotto-like bathroom opens to the tree canopy; interventions which balance the home’s opportunities for social connection, solitude, and communion with nature.
Project Information
Toronto, Canada | 170 sm | 1800 sf
Photography: Scott Norsworthy
Construction Partner: Desar Construction Studio with BL Woodworking & Design
Select Press & Awards
Dwell Magazine, In Toronto, a Townhouse Maintains a Punchy Profile While Fitting in With Its Neighbors
Toronto Star, What colour works best with brick, trees, and snow? Owner of Glimmer House goes bold at home
Architect’s Newspaper, Kilogram Studio’s Glimmer House puts a lighthearted spin on Toronto’s history
AN Interior, Reserve and Refresh
The Globe and Mail, Outdoor showers: Are they refreshing or weird?
Home Adore, Glimmer House: Merging Victorian and Nautical Aesthetics in Toronto