Scooped
By Demetres
Square One
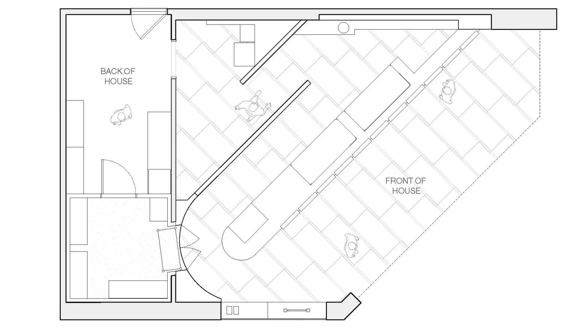
Kilogram was tasked with creating a signature look and feel for our client’s new ice cream brand by developing a strong interior design identity for Scooped’s first location in a major shopping centre.
Our response is a playful and contemporary space that brings together shimmering mirrored surfaces, textured coral microcement, warm terracotta floors, and custom fluted glass; details that spark whimsy and create an immersive environment that entices passersby and elevates the simple joy of ice cream.
Project Information
Toronto, Canada | 45 sm | 475 sf
Photography: Scott Norsworthy
Construction Partner: Proplus Contracting
Artwork by Chris Rouleau
Select Press & Awards
*Wallpaper, Has the ice cream parlour come of age?
Interior Design, Best of 2025 Awards Finalist
Azure, Best in Design 2025 Finalist
Interior Design, Enjoy a Cool Design Treat at Scooped
Canadian Interiors, Best of Canada Retail
The Architect’s Newspaper, Kilogram Studio uses playful perforations to scoop out functional space at an ice cream shop in Ontario
AN Interior, Sweet Strategy